以110 kV 智能变电站为例,如何进行通流实验?
日期 : 2020-04-11 15:25
不知道大家在我们的智能变电站实验有什么心得可以一起交流的呢?其实在我们的实验中们对于一些实验基础知识还是比较的模棱两可,今天湖南依中紫光电气带着大家一起去做一个实验,就拿以110 kV 智能变电站为例,如何进行通流实验?
大家都知道,某些智能变电站终使用使用的光电式互感器性能特征与传统互感器差别较大,为保证变电站的可靠运行,提供可靠的保护、计量参数,需在一次回路中通以适当的电流、电压,校核光电式互感器二次侧电流、电压及相位的准确性。
以某110kV站为例:

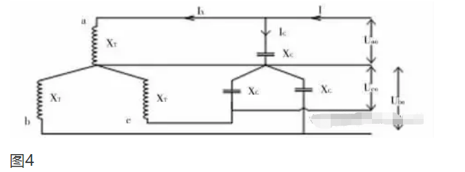
通流试验分 2 步进行,首先将图 1 中 5023—2用短路铜排短接,在 10 kV Ⅰ段母线上施加三相电压,接通调压器输入电源,缓慢调节后升流至 40A,则 A,B,C 三相二次值约为 50 mA,相位互差为 120°; 二次侧 a,b,c 三相二次值约为 132. 8mA,相位互差为 120°,在二次侧进行校核。然后在 5043 -2 隔离刀闸处用短路铜排三相进行短接,在 10 kV Ⅰ段母线上施加三相电压。接通调压器输入电源,缓慢调节后升流至 40 A,则 A,B,C 三相二次值约为 50 mA,相位互差为 120°;a,b,c 三相二次值约为 132. 8 mA,相位互差为120°,在二次侧进行校核。通流试验时,忽略一次回路中线路阻抗的影响(线路阻抗相比主变压器短路阻抗小很多),只考虑主变压器短路电抗的作用。试验过程中,主变处于额定分接位置。为补偿低压侧电流,在主变低压侧三相相间各并联 1 个额定电压 1 kV 电容量为1200 μF的电容器组,试验接线图如图 3 所示。为计算方便,将主变低压侧的联结方式由三角形转换为星形,其等效电路图如图 4 所示。
智能变电站实验中已知变压器阻抗电压,则换算到低压侧的短路:
感抗: X T = U d % ×U 2NS N×10 3 =0. 32,
当高压侧通流为 40 A 时,低压侧通流:
I X =40 ×U 1NU 2N=419. 0 A,
低压侧所需单相对地电压:
U 相 =419. 0 × X t =134. 1V,此时,线电压: U =134. 1 × 3 =232 V,
补偿电容器折算至单相的等效容抗:
X C =10 63 ×100π ×1 200=0. 88 ,补偿电流: I C =134. 1/0. 88 =152. 4 A,
调压器输出电流: I = I X - I C =419. 0 -152. 4 =266. 6 A,
所需电源的容量: S = 3 × 134. 1 × 266. 6 =107. 3 kVA。
因忽略了一次回路中线路阻抗的影响,在 2 个不同短路点试验时所需容量相同。智能变电站实验结果见下表所示:
从上表可得出,试验结果与计算结果基本一致,因此智能变电站实验方法是正确可行的。大家看完这次的实验,还有什么疑问吗?可以随时联系我们哦。